
価格 |
6,390万円 |
消費税 |
税込 |
---|---|---|---|
間取 |
3SLDK |
築年月 |
2026/01(建築予定) |
建物面積 |
97.29m²(29.43坪) |
土地面積 |
72.05m²(21.79坪) |
所在地 |
板橋区徳丸5丁目 |
||
交通 |
東武東上線下赤塚駅まで 徒歩18分
東武東上線東武練馬駅まで 徒歩19分
都営三田線高島平駅まで 徒歩22分 |
お電話でのお問い合わせ
物件番号:12961
お電話でお問い合わせの際は、物件番号をお伝えください。
03-5922-3310
営業時間:10:00 AM - 7:00 PM
定休日:火・水
ポイント
POINT
板橋区徳丸5丁目〔板橋区/新築戸建〕
●9月4日 登録の物件です
●住所は板橋区徳丸5丁目16-2です
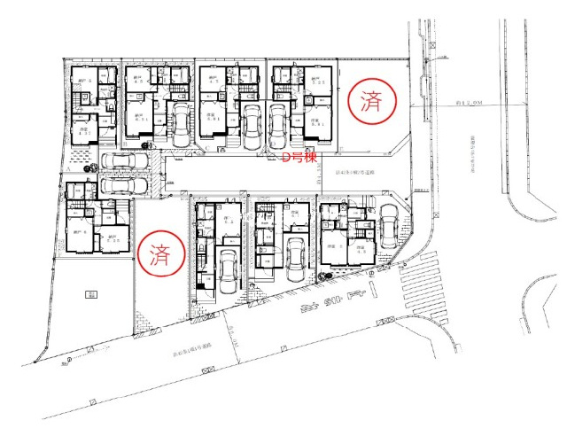
A~J棟の全10区画(+1棟売主残地)の分譲地です。今回ご紹介はD号棟です。南側が幅員約4.5mの開発道路に面しています。開発道路は分譲地内で突き当りの道路で、小さなお子様がいらっしゃるご家庭も比較的安心です。近くの石川橋公園はフェンスに囲まれたキャッチボール広場もありますよ。D号棟北側隣地は運送会社とその駐車場です。分譲地の向かいには下赤塚駅や高島平駅にアクセスできる徳丸5丁目バス停と、セブンイレブンがあります。

─[最寄り駅]───────────────────
東武東上線「下赤塚駅」ってどんな所?≫
─────────────────────────
駅から物件までの帰り道に、5分以内にあると便利
まいばすけっと 徳丸5丁目店…130m
セブンイレブン…60m
ウエルシア…540m
お子様のいるご家庭に大切なチェックポイント
にじいろ保育園徳丸…450m
紅梅小学校…650m
赤塚第一中学校…880m
いざという時、近くにないと困ります
ねや内科クリニック…370m
慈誠会記念病院…1350m
公園や図書館は休日のちょっとした過ごし場所に
立石川橋公園…200m
赤塚図書館…1140m
●9月4日 登録の物件です
●住所は板橋区徳丸5丁目16-2です
A~J棟の全10区画(+1棟売主残地)の分譲地です。今回ご紹介はD号棟です。南側が幅員約4.5mの開発道路に面しています。開発道路は分譲地内で突き当りの道路で、小さなお子様がいらっしゃるご家庭も比較的安心です。近くの石川橋公園はフェンスに囲まれたキャッチボール広場もありますよ。D号棟北側隣地は運送会社とその駐車場です。分譲地の向かいには下赤塚駅や高島平駅にアクセスできる徳丸5丁目バス停と、セブンイレブンがあります。

─[最寄り駅]───────────────────
東武東上線「下赤塚駅」ってどんな所?≫
─────────────────────────














物件詳細DETAIL
建物構造 |
木造 |
間取詳細 |
(1F)洋5.81、(1F)納戸5.25、(2F)LDK18.25、(3F)洋6.12、(3F)洋5.25 |
---|---|---|---|
建ぺい率 |
60% |
容積率 |
200% |
地目 |
宅地 |
用途地域 |
第一種中高層住居専用地域 |
取引態様 |
仲介 |
私道面積 |
119.29m² |
引渡時期 |
2026/02 中旬 |
土地権利 |
所有権 |
借地料 |
- |
借地期間 |
- |
セットバック |
建築確認番号 |
第 HPA-25-08225-1号 |
|
接道 |
南 4.5m(幅員) 私道 7.2m(接面) |
諸費用 |
|
周辺環境 |
↑「詳細を表示」より参照下さい |
学区 |
紅梅小学校 650m
赤塚第一中学校 880m |
特色/設備 |
板橋区徳丸5丁目〔板橋区/新築戸建〕都市ガス、全居室収納、駐車場、南向き、南面バルコニー、整形地、LDK15帖以上、南道路、食器洗乾燥機、3階建て、トイレ2か所、浴室換気乾燥機、床暖房、システムキッチン、スーパー近く(徒歩5分以内)、公園近く(徒歩5分以内) ☆ 物件1つ1つにコメントを書かせて頂いているので、ぜひ↑この物件詳細欄の上部にある「詳細を表示」より参照下さい(スマートフォンの場合) |
||
備考 |
この物件はD号棟です。 |
||
情報更新日 |
2025年10月22日 |
次回更新予定日 |
2025年10月23日 |
取引条件有効期限 |
2025年10月22日 |
※掲載されている物件データが現状と異なる場合は現状を優先します。
周辺地図MAP

株式会社ホームリンクCOMPANY
所在地 |
東京都板橋区上板橋1-1-1 |
||
---|---|---|---|
免許番号 |
東京都知事免許(3)第96673号 |
||
会員 |
(公社)東京都宅地建物取引業協会
(公社)全国宅地建物取引業保証協会
|
||
電話番号 |
03-5922-3310 |
FAX番号 |
03-5922-3312 |
営業時間 |
10:00 AM - 7:00 PM |
定休日 |
火・水 |