
価格 |
8,799万円 |
消費税 |
税込 |
---|---|---|---|
間取 |
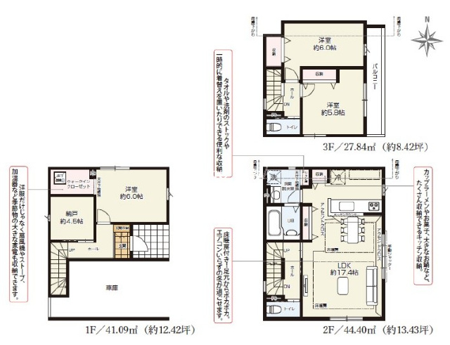
3SLDK |
築年月 |
2026/01(建築予定) |
建物面積 |
113.33m²(34.28坪) |
土地面積 |
64.37m²(19.47坪) |
所在地 |
板橋区桜川2丁目 |
||
交通 |
東武東上線上板橋駅まで 徒歩12分 |
お電話でのお問い合わせ
物件番号:13014
お電話でお問い合わせの際は、物件番号をお伝えください。
03-5922-3310
営業時間:10:00 AM - 7:00 PM
定休日:火・水
ポイント
POINT
板橋区桜川2丁目〔板橋区/新築戸建〕
●9月26日 登録の物件です
●住所は板橋区桜川2丁目61-2です

前面道路の向かいが城北高校です(正門前ではありません)。近くのあいさつ通りという歩道のある並木道は春には桜が咲きます。小学校中学校も近く、お子様の通学も安心に思います。建物は2階にリビング・キッチン・浴室・洗面室を集めた3階建て、バルコニーは3階、東向きとなります。ビルトイン車庫付き。前面道路は交通量もなく、幅員約5.9mで車の行き交いや車庫入れもしやすいです。
─[最寄り駅]───────────────────
東武東上線「上板橋駅」ってどんな所?≫
─────────────────────────
─[治安について]─────────────────
「桜川2丁目」の犯罪件数など≫
─────────────────────────
駅から物件までの帰り道に、5分以内にあると便利
コモディイイダ東新町店…720m
セブンイレブン…650m
トモズ…770m
お子様のいるご家庭に大切なチェックポイント
東新保育園…620m
桜川小学校…280m
桜川中学校…180m
いざという時、近くにないと困ります
竹川病院…340m
斎藤医院…250m
公園や図書館は休日のちょっとした過ごし場所に
城北中央公園…160m
中央図書館…1070m
●9月26日 登録の物件です
●住所は板橋区桜川2丁目61-2です

前面道路の向かいが城北高校です(正門前ではありません)。近くのあいさつ通りという歩道のある並木道は春には桜が咲きます。小学校中学校も近く、お子様の通学も安心に思います。建物は2階にリビング・キッチン・浴室・洗面室を集めた3階建て、バルコニーは3階、東向きとなります。ビルトイン車庫付き。前面道路は交通量もなく、幅員約5.9mで車の行き交いや車庫入れもしやすいです。
─[最寄り駅]───────────────────
東武東上線「上板橋駅」ってどんな所?≫
─────────────────────────
─[治安について]─────────────────
「桜川2丁目」の犯罪件数など≫
─────────────────────────














物件詳細DETAIL
建物構造 |
木造 |
間取詳細 |
(1F)洋6、(1F)S4.5、(2F)LDK17.4、(3F)洋6、(3F)洋5.8 |
---|---|---|---|
建ぺい率 |
70% |
容積率 |
200% |
地目 |
宅地 |
用途地域 |
第一種中高層住居専用地域 |
取引態様 |
仲介 |
私道面積 |
- |
引渡時期 |
2026/01 中旬 |
土地権利 |
所有権 |
借地料 |
- |
借地期間 |
- |
セットバック |
建築確認番号 |
第KBI-YKH25-10-2084号 |
|
接道 |
東 5.9m(幅員) 公道 9m(接面) |
諸費用 |
|
周辺環境 |
↑「詳細を表示」より参照下さい |
学区 |
桜川小学校 280m
桜川中学校 180m |
特色/設備 |
板橋区桜川2丁目〔板橋区/新築戸建〕都市ガス、小学校近く(徒歩5分以内)、病院近く(徒歩5分以内)、公園近く(徒歩5分以内)、フラット35S、LDK15帖以上、システムキッチン、対面(カウンター)キッチン、パントリー(収納庫)、全居室収納、駐車場、食器洗乾燥機、床暖房、3階建て、ウォークインクローゼット、浴室換気乾燥機、整形地、トイレ2か所 ☆ 物件1つ1つにコメントを書かせて頂いているので、ぜひ↑この物件詳細欄の上部にある「詳細を表示」より参照下さい(スマートフォンの場合) |
||
備考 |
建物面積に車庫面積15.83㎡も含みます。 |
||
情報更新日 |
2025年10月02日 |
次回更新予定日 |
2025年10月03日 |
取引条件有効期限 |
2025年10月02日 |
※掲載されている物件データが現状と異なる場合は現状を優先します。
周辺地図MAP
YouTube動画MOVING IMAGE

株式会社ホームリンクCOMPANY
所在地 |
東京都板橋区上板橋1-1-1 |
||
---|---|---|---|
免許番号 |
東京都知事免許(3)第96673号 |
||
会員 |
(公社)東京都宅地建物取引業協会
(公社)全国宅地建物取引業保証協会
|
||
電話番号 |
03-5922-3310 |
FAX番号 |
03-5922-3312 |
営業時間 |
10:00 AM - 7:00 PM |
定休日 |
火・水 |